【福岡県中間市リノベーション・リフォーム施工事例】キッチンを中心とした家事ラク動線! 空き家をフルリノベーション(リフォーム)!

実例・お客様の声

WORKS

  • #戸建て

  • #キッチン

  • #リビング

  • #浴室

  • #トイレ

  • #廊下

  • #1000万円~

【福岡県中間市】家族の思い出を受け継ぎ、新たな暖かさと快適さを蘇らせる。築30年のお家を心地よい空間へリフォーム・リノベーション

費用

1600万円

工期

90日間

リフォーム
箇所
キッチン、リビング、浴室、トイレ、廊下
築年数
30年
家族構成
2名
種別
戸建て
構造
木造2階建て

快適さと使いやすさを追求。築30年のお家が新たな魅力で蘇るリノベーション。


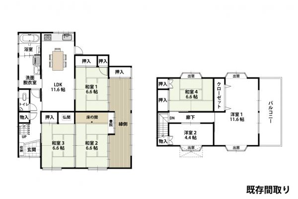
築30年のお家を使いやすくリノベーション。間取りを変更してキッチンを中心にダイニング・リビングをつなげ、洗面脱衣所へのアクセスも改善。収納スペースも充実させ、大型カップボードやパントリー、ウォークインクローゼットを設置。和室と縁側を取り払い、23帖の広々としたリビングに変更。外断熱と床暖房で断熱性能を向上。住みやすく快適な空間に生まれ変わりました。


リフォームのポイント

POINT

POINT.1

使いやすい間取りの採用

施工前

施工前

BEFORE

キッチンが一番奥にあり、どこに行くにも距離がありました。

施工前

施工後

AFTER

「奥様目線で、使いやすい」をテーマにキッチンを中心とした家事ラク動線を構築し、キッチンから直接ダイニング・リビングや洗面脱衣所にアクセスできるようにしました。日常の生活をスムーズに行えるよう配慮しております。

POINT.2

充実した収納スペースの設置

施工前

施工前

BEFORE

キッチン上部の棚やダイニングに食器棚等を設置することで窮屈感がありました。

施工前

施工後

AFTER

大きなカップボードやパントリーをキッチンに設置し、リビングには広々としたウォークインクローゼットを備えました。洋室にもクローゼットを設けることで、豊富な収納スペースを確保しました。

POINT.3

間取り変更による広々としたリビングの実現

施工前

施工前

BEFORE

元々和室と縁側があり、ダイニングとは壁で仕切りがあり、狭く感じていました。

施工前

施工後

AFTER

和室と縁側を撤去し、仕切り壁を取り払い、広々とした23帖のリビングに変更しました。開放感のあるリビング空間で、くつろぎや交流の場を提供します。

POINT.4

外断熱と床暖房による快適な環境づくり

施工前

施工前

BEFORE

古いお家の為、断熱性が心配であった

施工前

施工後

AFTER

古いお家の断熱性の向上のため、外断熱を採用しました。さらに、リビングとダイニングには床暖房を設置することで、快適な温かさを提供します。中間市の寒い冬ももう心配なしです!

POINT.5

間取り変更

施工前

施工前

BEFORE

施工前

施工後

AFTER

今の生活スタイルに合わせて、和室をすべて洋室に変更しております。
また間取りを工夫しウォークインクローゼットを設けることで収納スペースもたっぷり確保しております。

お客様の声

VOICE

  • 古いお家なので中間市の寒い冬が心配。。。

    古いお家なので中間市の寒い冬が心配。。。

    以前はご両親が使われていたお家。両親から引き継ぎ生活の拠点としてこのお家を活用したいと考え、リフォームを決意しました。築30年と古いお家のため、使い勝手の悪い間取りを家事のラクな間取りに、そして中間市の寒い冬を耐えれるように断熱性の高いお家にリフォーム・リノベーションを希望しました。

サイト
メニュー
メニューを
閉じる

電話で
お問い合わせ